Vendido
Apartamento en venta en Windsor Park
Tenerife, Adeje, Costa Adeje (Torviscas Alto)
Referencia 04293
Nombre del complejo Windsor Park
Dormitorios 1
Baños 1
Aseos 0
Superficie interior 39 m²
Superficie terraza 11 m²
Distancia al mar 1400 metros
Muebles incluidos
Cocina americana
Piscina comunitaria
Num. de piscinas 2
Garaje no hay
Comunidad 110 €/mes
IBI 150 €/Año
Certificado energético 
Última actualización 14-12-2025
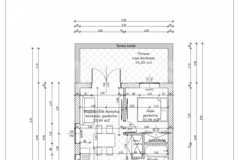
En venta apartamento de 1 dormitorio en Windsor Park, actualmente en proceso de reforma. Por el momento solo se dispone del plano de distribución con medidas. La propiedad cuenta con 32 m² interiores y una terraza de 11 m², desde la cual se pueden disfrutar vistas al mar.
Video del inmueble
Situación en el mapa
| Referencia | 04293 |
|---|---|
| Nombre del complejo | Windsor Park |
| Dormitorios | 1 |
| Baños | 1 |
| Aseos | 0 |
| Superficie interior | 39 m² |
| Superficie terraza | 11 m² |
| Distancia al mar | 1400 metros |
| Muebles | incluidos |
| Cocina | americana |
| Piscina | comunitaria |
| Num. de piscinas | 2 |
| Garaje | no hay |
| Comunidad | 110 €/mes |
| IBI | 150 €/Año |
| Certificado energético | |
| Última actualización | 14-12-2025 |
En venta apartamento de 1 dormitorio en Windsor Park, actualmente en proceso de reforma. Por el momento solo se dispone del plano de distribución con medidas. La propiedad cuenta con 32 m² interiores y una terraza de 11 m², desde la cual se pueden disfrutar vistas al mar.




