Sold
Apartment for sale in Windsor Park
Tenerife, Adeje, Costa Adeje (Torviscas Alto)
Reference 04293
Name of the facility Windsor Park
Rooms 1
Bathrooms 1
Toilets 0
Internal area 39 m²
Terrace area 11 m²
Distance from the sea 1400 meters
Furniture included
Kitchen american
Swimming pool community
No. of pools 2
Garage no
Community fee 110 €/month
IBI 150 €/Year
Energy certificate 
Last Update 14-12-2025
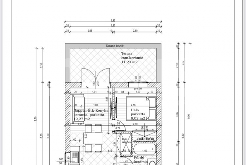
For sale 1 bedroom apartment in Windsor Park, currently in the process of reform. At the moment only the distribution plane is available with measures. The property has 32 m² interior and a terrace of 11 m², from which you can enjoy views to the sea.
Video
Location on the map
| Reference | 04293 |
|---|---|
| Name of the facility | Windsor Park |
| Rooms | 1 |
| Bathrooms | 1 |
| Toilets | 0 |
| Internal area | 39 m² |
| Terrace area | 11 m² |
| Distance from the sea | 1400 meters |
| Furniture | included |
| Kitchen | american |
| Swimming pool | community |
| No. of pools | 2 |
| Garage | no |
| Community fee | 110 €/month |
| IBI | 150 €/Year |
| Energy certificate | |
| Last Update | 14-12-2025 |
For sale 1 bedroom apartment in Windsor Park, currently in the process of reform. At the moment only the distribution plane is available with measures. The property has 32 m² interior and a terrace of 11 m², from which you can enjoy views to the sea.




